Projet Focus

Aménagement d’un bureau professionnel

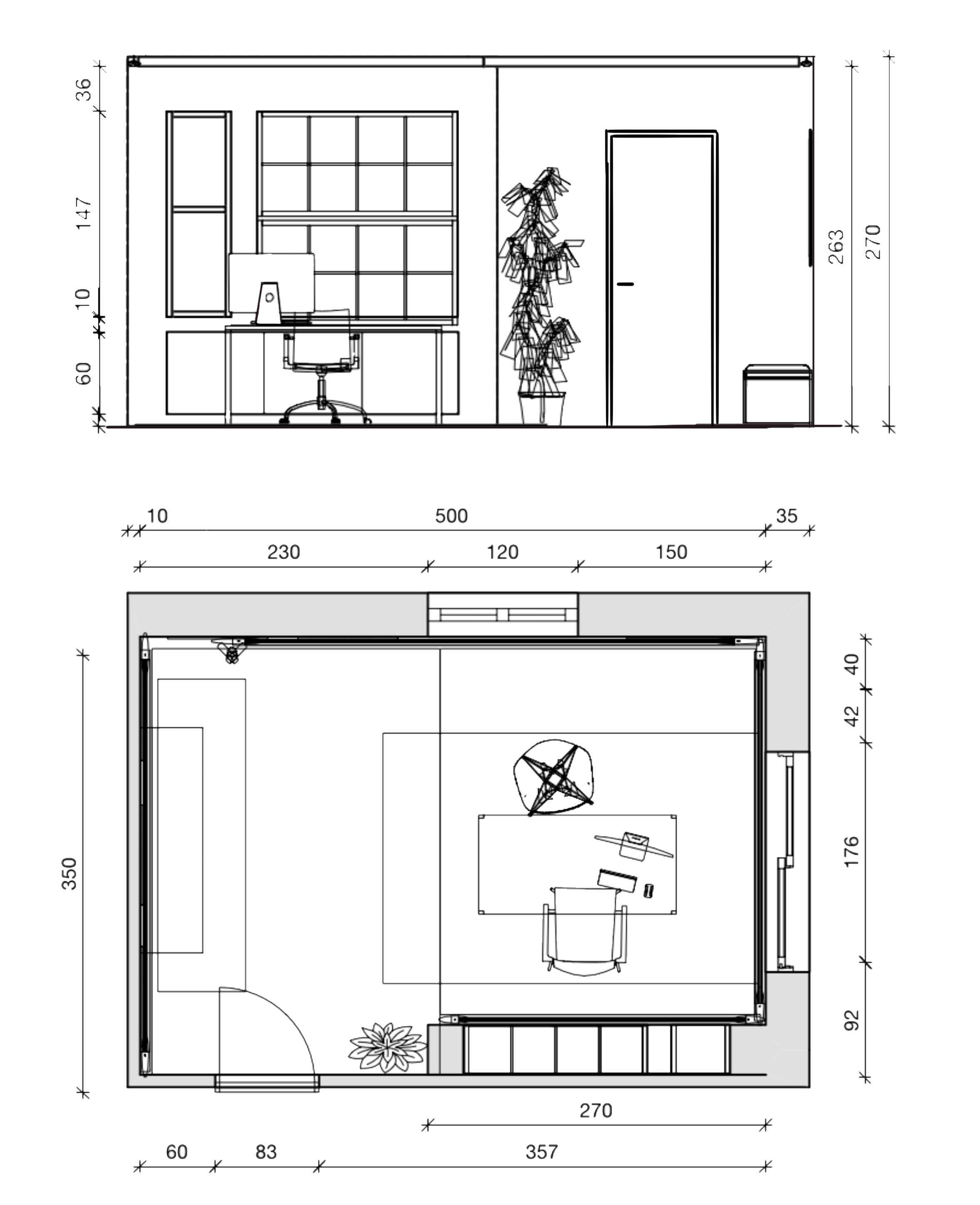
Ce projet propose l’aménagement d’un bureau de 17,5 m² destiné à un photo-reporter, au sein d’un appartement parisien en rénovation. Le client souhaitait intégrer des éléments de mobilier précis : la table Four de Kartell utilisée comme bureau, la chaise DAR de Vitra et une étagère Kallax d’Ikea.

L’aménagement a été pensé pour structurer l’espace, optimiser les rangements et favoriser la concentration. Les teintes claires, associées à un sol minéral foncé, créent une atmosphère lumineuse et équilibrée, propice au travail et à la créativité.

Précédent
Précédent

Projet Mineral Loft

Suivant
Suivant

Projet Arizona Sky